Homologação de Sistema Solar Até 10,1 à 20 kWp - DAN Solar
Fale Conosco:
(18) 98809-5725 TELEVENDAS
(11) 99887-7338 - Luciana - WhatsApp

Homologação de Sistema Solar Até 10,1 à 20 kWp

(Cód.)
| Deixar comentário
R$600,00
Embalagem para presente: Opções disponíveis no carrinho.

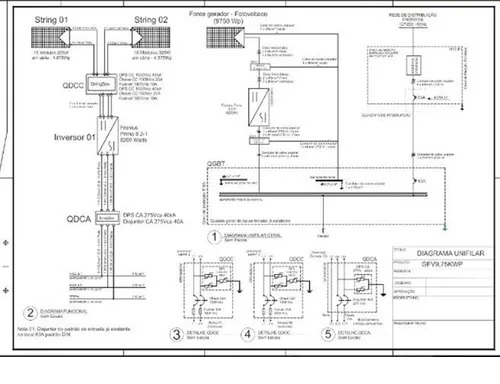
Elaboração e homologação de projetos de microgeração e minigeração de energia solar fotovoltaicas para residências, comércios e indústrias. Somos uma empresa com grande experiência em homologação de projetos fotovoltaicos, com mais de 1000 projetos homologados em diversas concessionárias em todo o Brasil.

 

OBS: TRT PAGO PELO CLIENTE: R$ 65,00

Comentários sobre o produto