- Página Inicial
- HOMOLOGAÇÃO
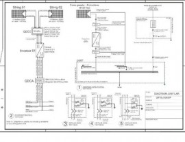
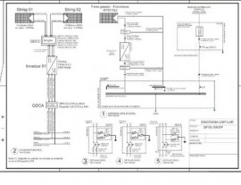
- Homologação de Sistema Solar Acima de 75 kWp
Elaboração e homologação de projetos de microgeração e minigeração de energia solar fotovoltaicas para residências, comércios e indústrias. Somos uma empresa com grande experiência em homologação de projetos fotovoltaicos, com mais de 1000 projetos homologados em diversas concessionárias em todo o Brasil.
Carregando... Por favor, aguarde...
